

Betreutes Wohnen in Zeitlarn – Neubau von 35 barrierefreien Mietwohnungen für Personen ab 60 Jahren

Wir errichten insgesamt 35 barrierefreie Wohnungen und einen Gemeinschaftsraum für Veranstaltungen und Kurse. Die Wohnflächen der 33 Zwei-Zimmer-Wohnungen variieren zwischen 58,40 m² und 94,25 m².
Außerdem entstehen 2 Ein-Zimmer-Appartements, großzügige Außenanlagen mit Nebengebäuden, Vorplätzen und 16 Außenstellplätzen sowie eine Tiefgarage mit 29 Stellplätzen.
Für den Pflegedienst Elvira Hanff entsteht ein Pflegestützpunkt, der ambulante Betreuungs- und Pflegeleistungen anbieten wird.
Voraussichtliche Bezugsfertigkeit: 3. Quartal 2027
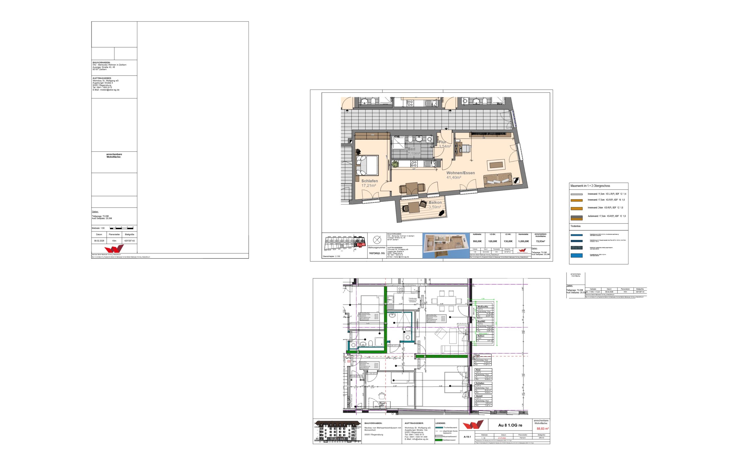
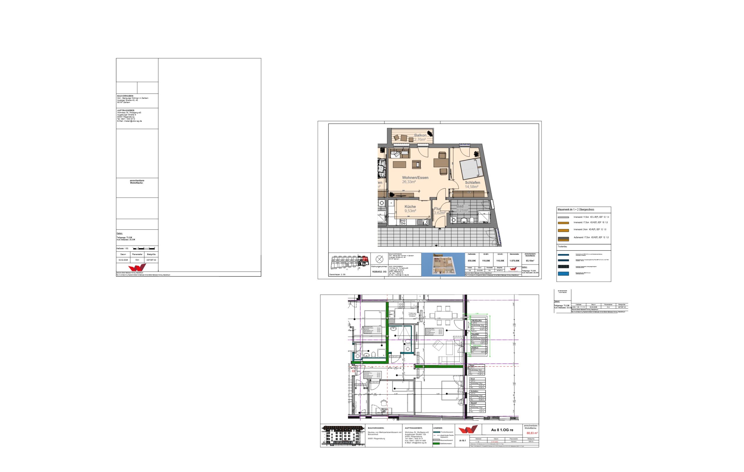
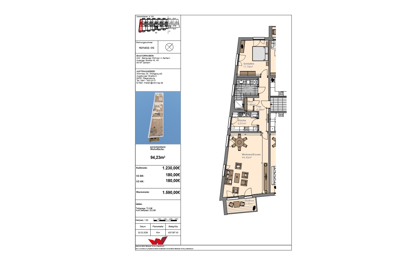
Um sich als potentieller Mietinteressent ein genaueres Bild über die Gebäudestruktur, Grundrisse und allgemeine bauliche Gegebenheiten machen zu können haben wir die Pläne je Geschoss beigefügt:
Bitte beachten Sie, dass der Maßstab der Pläne bei Ausdruck durch untenstehenden Link nicht stimmt. Die Pläne dienen zur Veranschaulichung der einzelnen Wohnungen. Den Originalplan mit Maßstab können Sie in unserer Geschäftsstelle unter 0941 60091-0 oder mieten@wbw-eg.de anfragen.
Untergeschoss https://wbw-eg.de/wordpress/wp-content/uploads/2025/08/UG.png
Erdgeschoss https://wbw-eg.de/wordpress/wp-content/uploads/2025/08/EG.png

Wohnung Nr. 1600: https://wbw-eg.de/wordpress/wp-content/uploads/2025/08/1600.png
Wohnung Nr. 1601: https://wbw-eg.de/wordpress/wp-content/uploads/2025/08/1601.png
Wohnung Nr. 1602: https://wbw-eg.de/wordpress/wp-content/uploads/2025/08/1602.png
Wohnung Nr. 1603: https://wbw-eg.de/wordpress/wp-content/uploads/2025/08/1603.png
Wohnung Nr. 1604: https://wbw-eg.de/wordpress/wp-content/uploads/2025/08/1604.png
Wohnung Nr. 1605: https://wbw-eg.de/wordpress/wp-content/uploads/2025/08/1605.png
Wohnung Nr. 1606: https://wbw-eg.de/wordpress/wp-content/uploads/2025/08/1606.png
1. Obergeschoss https://wbw-eg.de/wordpress/wp-content/uploads/2025/08/1.-Obergeschoss.png

Wohnung Nr. 1607: https://wbw-eg.de/wordpress/wp-content/uploads/2025/08/1607.png
Wohnung Nr. 1608: https://wbw-eg.de/wordpress/wp-content/uploads/2025/08/1608.png
Wohnung Nr. 1609: https://wbw-eg.de/wordpress/wp-content/uploads/2025/08/1609.png
Wohnung Nr. 1610: https://wbw-eg.de/wordpress/wp-content/uploads/2025/08/1610.png
Wohnung Nr. 1611: https://wbw-eg.de/wordpress/wp-content/uploads/2025/08/1611.png
Wohnung Nr. 1612: https://wbw-eg.de/wordpress/wp-content/uploads/2025/08/1612.png
Wohnung Nr. 1613: https://wbw-eg.de/wordpress/wp-content/uploads/2025/08/1613.png
Wohnung Nr. 1614: https://wbw-eg.de/wordpress/wp-content/uploads/2025/08/1614.png
Wohnung Nr. 1615: https://wbw-eg.de/wordpress/wp-content/uploads/2025/08/1615.png
Wohnung Nr. 1616: https://wbw-eg.de/wordpress/wp-content/uploads/2025/08/1616.png
Wohnung Nr. 1617: https://wbw-eg.de/wordpress/wp-content/uploads/2025/08/1617.png
Wohnung Nr. 1618: https://wbw-eg.de/wordpress/wp-content/uploads/2025/08/1618.png
Wohnung Nr. 1619: https://wbw-eg.de/wordpress/wp-content/uploads/2025/08/1619.png
Wohnung Nr. 1620: https://wbw-eg.de/wordpress/wp-content/uploads/2025/08/1620.png
2. Obergeschoss https://wbw-eg.de/wordpress/wp-content/uploads/2025/08/2.-OG.png

Wohnung Nr. 1621: https://wbw-eg.de/wordpress/wp-content/uploads/2025/08/1621.png
Wohnung Nr. 1622: https://wbw-eg.de/wordpress/wp-content/uploads/2025/08/1622.png
Wohnung Nr. 1623: https://wbw-eg.de/wordpress/wp-content/uploads/2025/08/1623.png
Wohnung Nr. 1624: https://wbw-eg.de/wordpress/wp-content/uploads/2025/08/1624.png
Wohnung Nr. 1625: https://wbw-eg.de/wordpress/wp-content/uploads/2025/08/1625.png
Wohnung Nr. 1626: https://wbw-eg.de/wordpress/wp-content/uploads/2025/08/1626.png
Wohnung Nr. 1627: https://wbw-eg.de/wordpress/wp-content/uploads/2025/08/1627.png
Wohnung Nr. 1628: https://wbw-eg.de/wordpress/wp-content/uploads/2025/08/1628.png
Wohnung Nr. 1629: https://wbw-eg.de/wordpress/wp-content/uploads/2025/08/1629.png
Wohnung Nr. 1630: https://wbw-eg.de/wordpress/wp-content/uploads/2025/08/1630.png
Wohnung Nr. 1631: https://wbw-eg.de/wordpress/wp-content/uploads/2025/08/1631.png
Wohnung Nr. 1632: https://wbw-eg.de/wordpress/wp-content/uploads/2025/08/1632.png
Wohnung Nr. 1633: https://wbw-eg.de/wordpress/wp-content/uploads/2025/08/1633.png
Wohnung Nr. 1634: https://wbw-eg.de/wordpress/wp-content/uploads/2025/08/1634.png
Provisionsfreie Wohnung in Regensburg
Sie suchen eine provisionsfreie Wohnung in Regensburg? Wir sind der größte genossenschaftliche Vermieter in Regensburg und bieten Ihnen sowohl Apartments, als auch größere Wohnungen zum mieten an (1ZKB, 2ZKB, 3ZKB, 4ZKB).
Unsere provisionsfreien Wohnungen liegen sowohl in der Regensburger Altstadt, als auch in Regensburg Kumpfmühl, so dass gerade Studenten auch eine gute Anbindung zur Universität Regensburg vorfinden.
Wir möchten uns auf diesen Seiten Ihnen weiter Vorstellen und einige, hoffentlich für Sie nützliche, Informationen über unser Wohnungsunternehmen bereitstellen.
Gleich hier finden Sie derzeitige Informationen rund um unsere Baugenossenschaft.
Ihr Team der Wohnbau St. Wolfgang eG
